SkyWindPark
Modern Living Space & Shops
Where Every Day Feels Effortless
Whether it's a lively morning in your home or a bustling afternoon at your shopfront, Skywind Park is crafted for those who want it all—comfort, convenience and community. Thoughtfully designed with open spaces, modern amenities and secure living, it’s where modern life truly comes alive.
RERA
PR/GJ/AHMEDABAD/AHMEDABAD CITY/Ahmedabad Municipal Corporation/MN354AA10254/010723
Floor Plan for Sky Wind Park
Ground Floor
- Shop X 24
- Parking Area
- Landscape Garden
- Children Play Area
First Floor
- Shop X 1
- Units X 10
Typical Floors
- Units X 12
First Basement
- Parking
Second Basement
- Parking
Floor Plan for Sky Wind Park
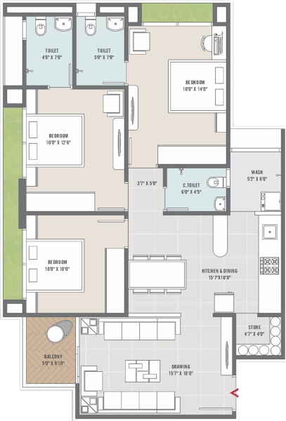
3 BHK - Plan 1
- Bedroom X 3
- Kitchen
- Dining Area
- Store Room
- Drawing Room
- Balcony
- Washroom X 3
3 BHK - Plan 2
- Bedroom X 3
- Kitchen
- Dining Area
- Store Room
- Drawing Room
- Balcony
- Washroom X 3
2 BHK - Plan 1
- Bedroom X 2
- Kitchen
- Dining Area
- Store Room
- Drawing Room
- Balcony
- Washroom X 2
- Wash Area
2 BHK - Plan 2
- Bedroom X 2
- Kitchen
- Dining Area
- Store Room
- Drawing Room
- Balcony
- Washroom X 2
- Wash Area
Amenities
2 Basement + HR LVL Parking
Indoor Games
Children Play Area
Club House
Landscape Garden
24 Hours Water Supply
Provision for Gas Pipeline
24 X 7 Security
Beyond Four Walls…
Situated in Akhbar Nagar, Nava Vadaj, Skywind Park is a vibrant mixed-use project sprawling over 231,644 sq. ft. It offers a well-balanced mix of 104 2BHK and 52 3BHK residential units along with 25 premium commercial shops. Designed to suit a contemporary lifestyle, the project boasts amenities like 2-level basement parking, a clubhouse, an indoor games area, a landscaped garden and a children’s play zone. With 24/7 security, uninterrupted water supply and provisions for a gas pipeline, Skywind Park ensures a seamless, secure and enriching living and working environment.
